Perfekte Harmonie: Haus, Grundstück & Finanzierung aus einer Hand.
444.798 €
Festpreis
08.11.2025
Weitere Angaben
-
Merkmale
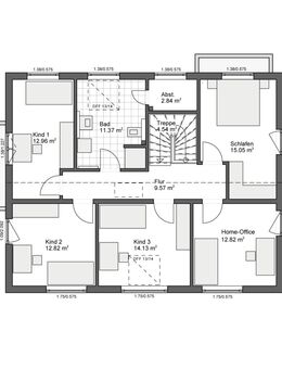
- Wohnfläche160,00 m²
- Grundstücksfläche514,00 m²
- Zimmeranzahl5
- AusstattungGäste WC, Fußbodenheizung
